Nook The Cliff

崖の手前Before the Cliff

一歩先で、景色も時間も変わる。

境目Threshold

ここから先は、別の時間が流れる。

腰を落とすSettle

この場所が、今日の中心になる。

身を預けるLean Back

ただ空と海に、身体を任せる。

湯に沈むSink In

心も、預ける。

考えない場所No Thoughts Here

頭を、休ませる。

静けさを囲むIn Silende

ここでは、静けさだけが残る。

一頁A Page

夜が深くなる。

朝に戻るReturn to Morning

昨日の続きみたいな朝。

光を受けるBethe in Light

空の色が、湯に溶ける。

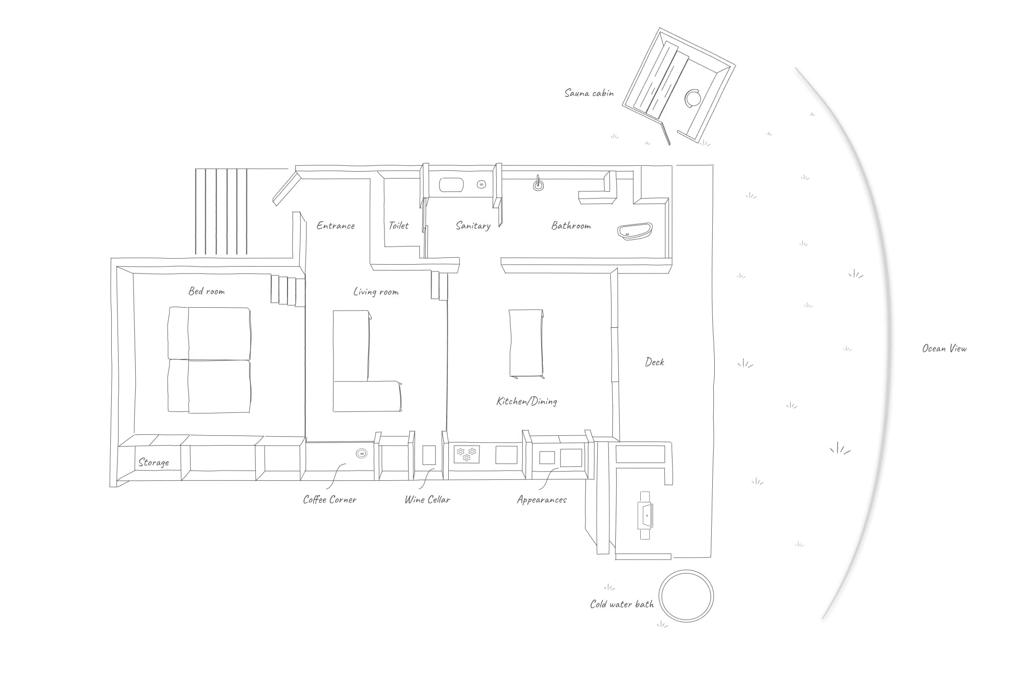
ROOM TYPE

Nook The Cliff
貸別荘
定員 / 7名
広さ / 113㎡
(約300㎡※芝生スペース含む)
サウナ / 有